| 联系方式 | 该项目来源于钢构宝APP,联系业主电话请下载钢构宝APP,或咨询钢构宝客服4001392998/四零零--一三九--二九九八 https://www.zwggb.com |
| 订单编号 | 1376541447314 |
| 更新时间 | 2025-12-29 16:39:26 |
| 订单类型 | 光伏能源 |
| 项目地址 | 内蒙古巴彦淖尔市乌拉特前旗乌苏地区 |
| 总面积 | 10000.00㎡ |
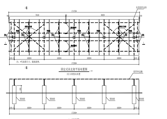
| 项目描述 | 内蒙古乌拉特前旗光伏板安装计划 项目内容:总工程量约100MW,采用2384*1303*1500mm的组件。每组26块板,布置间距30mm,详情可参考图纸,施工方带随手工具只用上板。 已经开工,随时进场,管住和保险,吃饭自理,固定单价,一个方阵一结,详情面议,请内蒙古乌拉特前旗就近有兴趣的施工方联系我。 |
| 询价区域 | 河北、山西、内蒙古 |
| 项目图纸及资料 |
内蒙古乌拉特前旗光伏板安..._资料1.mp4 |
| 项目图片 |
|




