| 联系方式 | 该项目来源于钢构宝APP,联系业主电话请下载钢构宝APP,或咨询钢构宝客服4001392998/四零零--一三九--二九九八 https://www.zwggb.com |
| 订单编号 | 1376526429874 |
| 更新时间 | 2025-12-22 10:56:54 |
| 订单类型 | 光伏能源 |
| 项目地址 | 河北张家口市桥西区城区 |
| 总面积 | 10000.00㎡ |
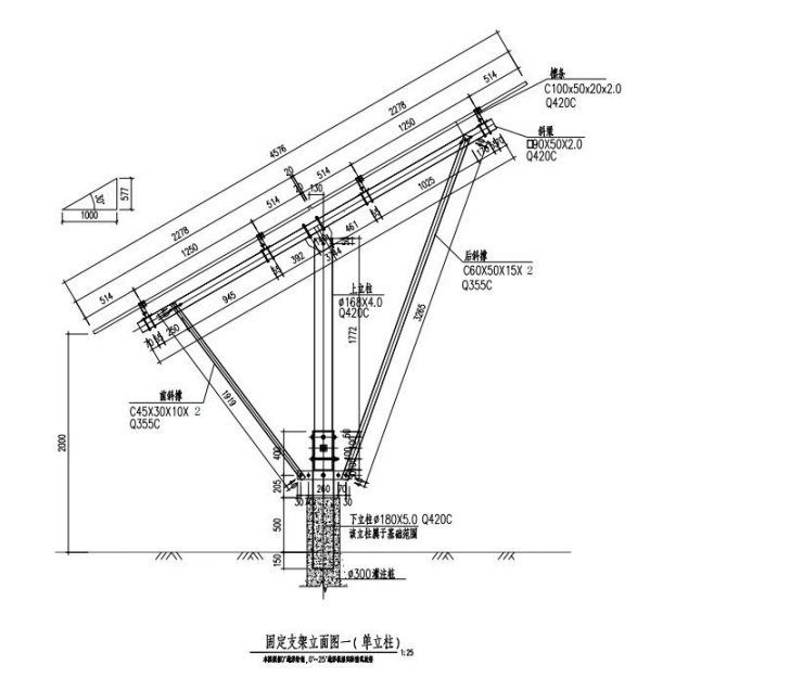
| 项目描述 | 河北张家口山地光伏安装工程 1、河北张家口山地光伏,工程量差不多有个1兆左右,一组有26块板,组件尺寸是2278x1134x30,585的板, 2 行 13 列。 2、我方提供住宿,施工方负责人工和带随手工具,负责安装支架和板子,固定单价包干,请附近的施工队伍联系合作。 |
| 询价区域 | 河北 |
| 项目图纸及资料 |
河北张家口山地光伏安装工..._资料1.pdf |
| 项目图片 |
|




