| 联系方式 | 该项目来源于钢构宝APP,联系业主电话请下载钢构宝APP,或咨询钢构宝客服4001392998/四零零--一三九--二九九八 https://www.zwggb.com |
| 订单编号 | 1432605329299 |
| 更新时间 | 今日发布 |
| 订单类型 | 幕墙门窗 |
| 项目地址 | 福建厦门市同安区三环线 |
| 总面积 | 2000.00㎡ |
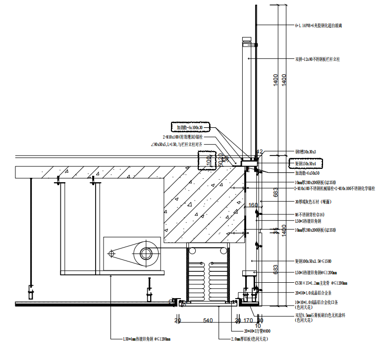
| 项目描述 | 1、福建厦门综合楼玻璃栏板安装项目,工程量约2000米,施工方出人工和随手工具负责焊立柱和装玻璃,详情可参考施工图纸。 2、材料我方提供到现场,按工程进度结款,吃住自理,请厦门就近的专业施工单位带价联系我。 |
| 询价区域 | 安徽、浙江、福建、江西 |
| 项目图纸及资料 |
福建厦门综合楼玻璃栏板安..._资料1.pdf |
| 项目图片 |
|




