| 联系方式 | 该项目来源于钢构宝APP,联系业主电话请下载钢构宝APP,或咨询钢构宝客服4001392998/四零零--一三九--二九九八 https://www.zwggb.com |
| 订单编号 | 1432315057112 |
| 订单类型 | 钢构工程 |
| 项目地址 | 辽宁辽阳市灯塔市柳河子镇米家沟 |
| 总面积 | 20000.00㎡ |
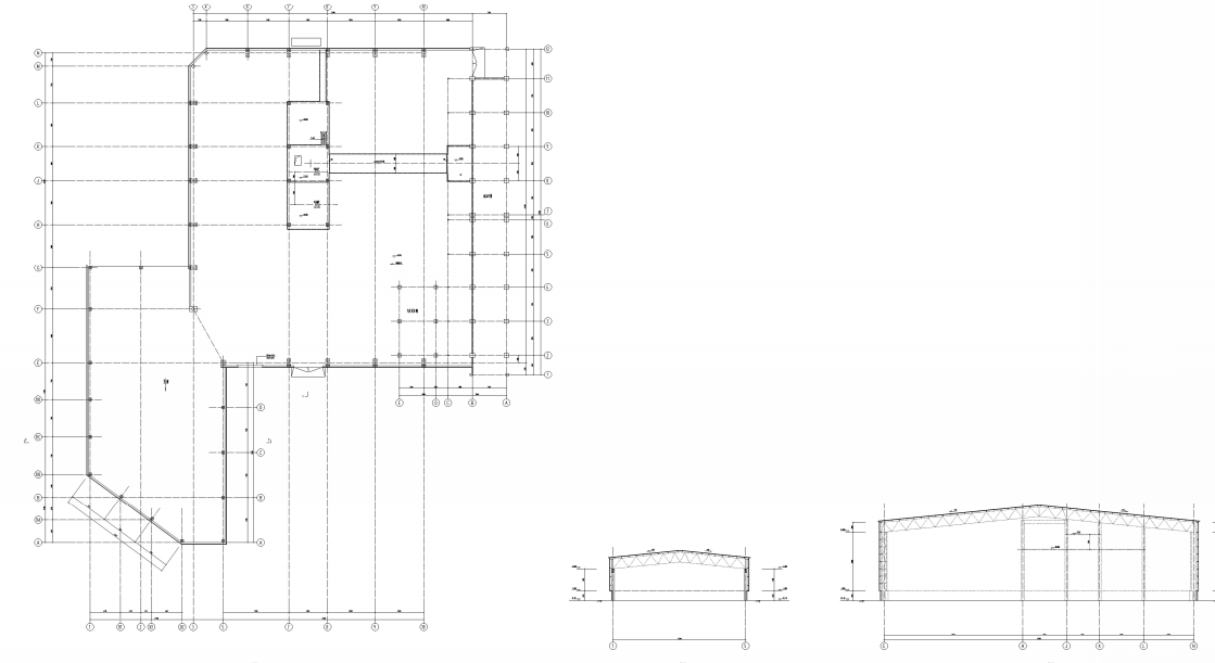
| 项目描述 | 1、辽宁新建成品结料堆场和卸煤及煤堆场大棚,负责屋面网架结构制作安装,屋面围护结构、檩条、天沟制作安装等内容,专业分包。 2、其中网架主体229吨,网架连接辅助构件11吨,檩条及围护结构90吨,包含螺栓球,钢管,油漆刷涂等工程量,具体见图纸清单,联系人:吴总。 |
| 询价区域 | 全国 |
| 项目图纸及资料 | |
| 项目图片 |
|




