| 联系方式 | 该项目来源于钢构宝APP,联系业主电话请下载钢构宝APP,或咨询钢构宝客服4001392998/四零零--一三九--二九九八 https://www.zwggb.com |
| 订单编号 | 1432113317689 |
| 订单类型 | 加工制造 |
| 项目地址 | 山西长治市襄垣县王村镇 |
| 总重量 | 190.00T(过磅) |
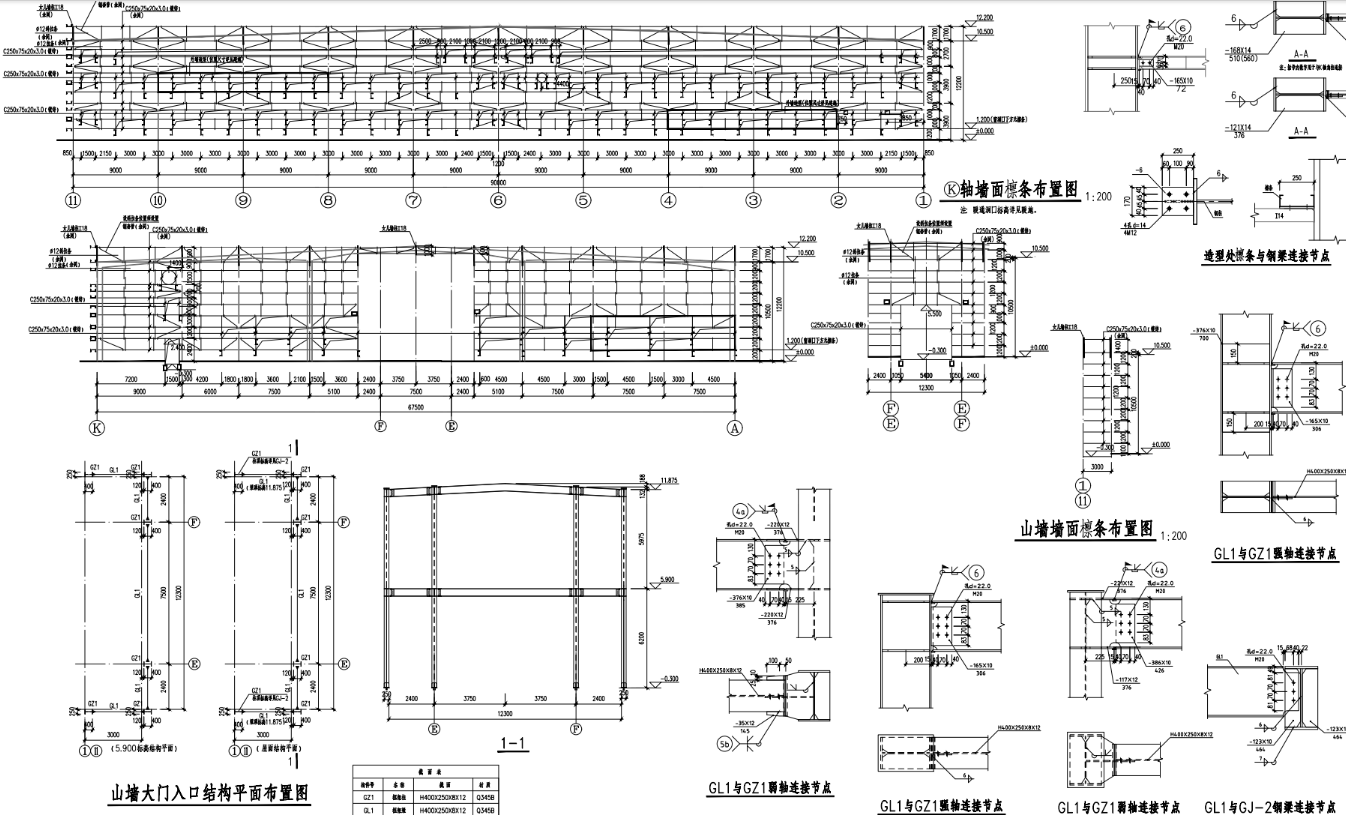
| 项目描述 | 山西长治地区钢结构仓库新建工程 1、仓库占地面积六千多方,地上一层,门式钢架结构,高度最高12.2米,目前在做土建部分,寻山西本地厂家负责加工制作,预计两周内开工,需要有钢结构二级资质,请长治就近厂家联系,负责人:张总。 |
| 询价区域 | 山西 |
| 项目图片 |
|





