| 联系方式 | 该项目来源于钢构宝APP,联系业主电话请下载钢构宝APP,或咨询钢构宝客服4001392998/四零零--一三九--二九九八 https://www.zwggb.com |
| 订单编号 | 1376526518514 |
| 更新时间 | 2025-12-22 17:37:55 |
| 订单类型 | 光伏能源 |
| 项目地址 | 山西忻州市原平市宁武县 |
| 总面积 | 10000.00㎡ |
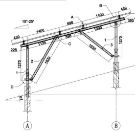
| 项目描述 | 山西原平市光伏组件安装项目 项目内容:总工程量约150MW,其组件尺寸为:2278*1134*30mm,固定支架2x3、2x7、2x13阵列,前后立柱,详情可参考图纸,施工方带随手工具安装组件。 已经开工,随时进场,做到年底,包住和保险,吃饭自理,固定单价,人走账清,详情面议,请山西原平就近有意向的施工方联系我。 |
| 询价区域 | 河北、山西、内蒙古 |
| 项目图纸及资料 | |
| 项目图片 |
|




