| 联系方式 | 该项目来源于钢构宝APP,联系业主电话请下载钢构宝APP,或咨询钢构宝客服4001392998/四零零--一三九--二九九八 https://www.zwggb.com |
| 订单编号 | 1376521717426 |
| 更新时间 | 2025-12-19 13:51:50 |
| 订单类型 | 光伏能源 |
| 项目地址 | 云南西双版纳州勐腊县藤蔑山 |
| 总面积 | 10000.00㎡ |
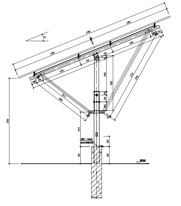
| 项目描述 | 云南西双版纳光伏组件安装项目 项目内容:总工程量约80MW,采用715wp的组件,其尺寸为:2384*1303*33mm,安装倾斜角度为22度,详情可参考图纸,施工方带随手工具安装组件。 已经开工,随时进场,做到年底,做多少算多少,10天结一次账,详情面议,请云南西双版纳就近的施工方联系我。 |
| 询价区域 | 贵州、云南、西藏 |
| 项目图纸及资料 | |
| 项目图片 |
|




