| 联系方式 | 该项目来源于钢构宝APP,联系业主电话请下载钢构宝APP,或咨询钢构宝客服4001392998/四零零--一三九--二九九八 https://www.zwggb.com |
| 订单编号 | 1376275322735 |
| 订单类型 | 厂房安装 |
| 项目地址 | 黑龙江大庆市大同区高台子镇 |
| 总面积 | 5115.60㎡ |
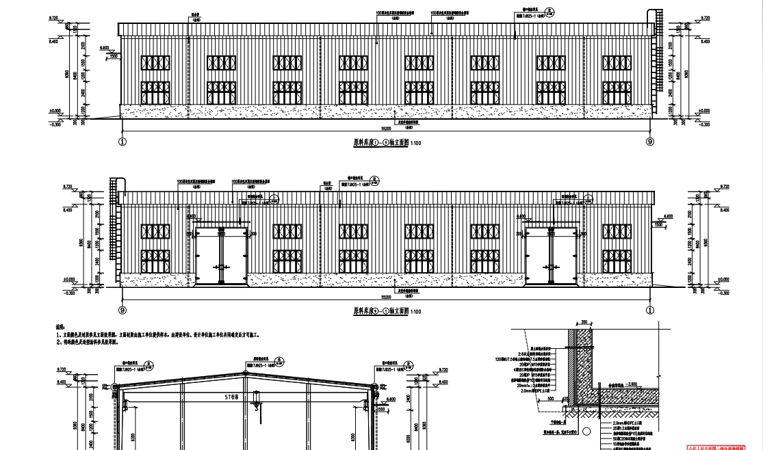
| 项目描述 | 黑龙江大庆地区钢结构厂房新建项目 1、新建厂房建筑面积5115.6平方,清工外包,地上一层, 建筑高度8.9米,甲方提供材料。 2、不含基础土建部分,施工方只负责钢结构部分,包含吊车辅材,预计一周内开工,进度结款,请大庆就近施工方加微信沟通报价。 |
| 询价区域 | 黑龙江 |
| 项目图纸及资料 | |
| 项目图片 |
|




