| 联系方式 | 该项目来源于钢构宝APP,联系业主电话请下载钢构宝APP,或咨询钢构宝客服4001392998/四零零--一三九--二九九八 https://www.zwggb.com |
| 订单编号 | 1376267169246 |
| 更新时间 | 2025-11-20 14:50:58 |
| 订单类型 | 劳务分包 |
| 项目地址 | 辽宁鞍山市立山区科技路 |
| 总面积 | 100.00㎡ |
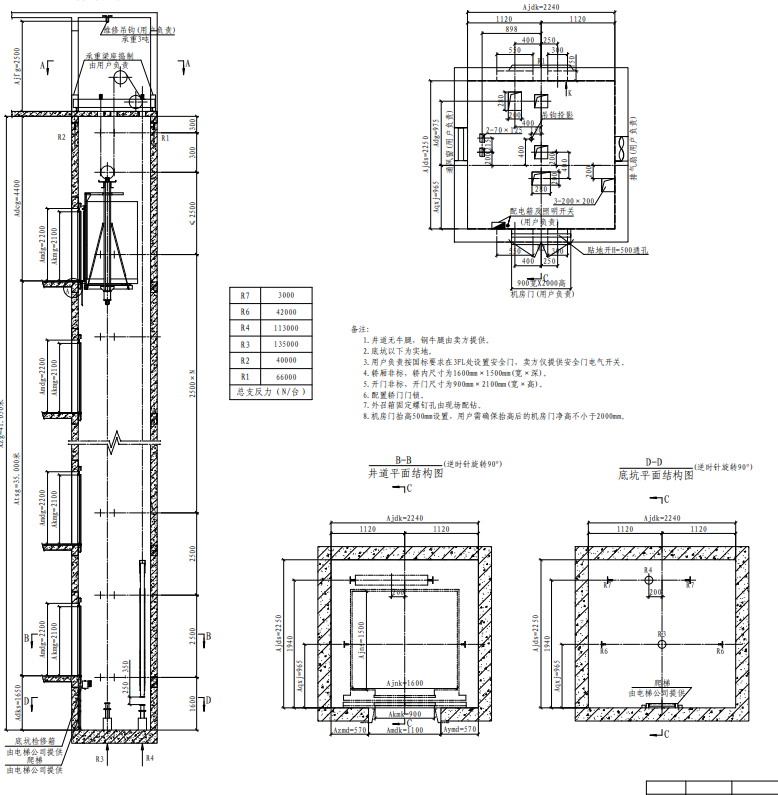
| 项目描述 | 1、辽宁鞍山地区住宅楼电梯安装工程,箱式电梯尺寸:高2.3m*宽1.2m米*深1.2m*斜框 0.3m,机房门抬高500mm设置,需确保抬高后的机房门净高不小于2000mm,详细可见图纸。 2、目前需要就近专业施工方做预算报价,清包工,合适后续还有工程量也可合作,请辽宁鞍山地区就近专业施工方带价联系我。 |
| 询价区域 | 辽宁、吉林、黑龙江 |
| 项目图纸及资料 |
辽宁鞍山住宅楼电梯安装工..._资料1.pdf |
| 项目图片 |
|




