| 联系方式 | 该项目来源于钢构宝APP,联系业主电话请下载钢构宝APP,或咨询钢构宝客服4001392998/四零零--一三九--二九九八 https://www.zwggb.com |
| 订单编号 | 1376267118845 |
| 更新时间 | 2025-11-20 09:51:18 |
| 订单类型 | 光伏能源 |
| 项目地址 | 新疆昌吉州呼图壁县二十里店镇 |
| 总面积 | 10000.00㎡ |
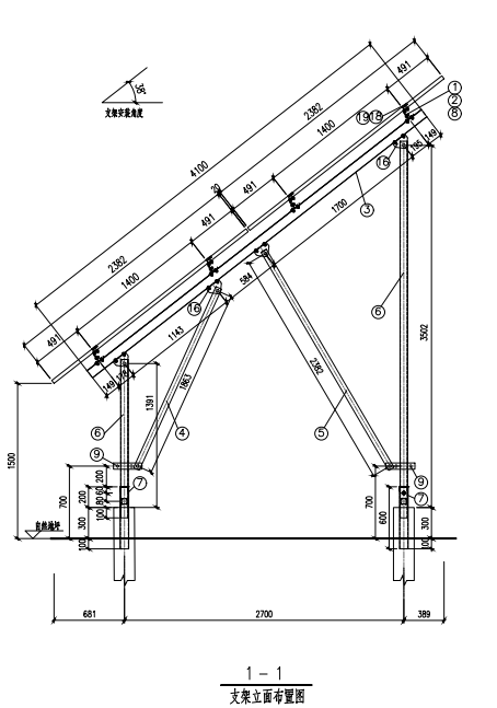
| 项目描述 | 新疆昌吉地区100MW平地光伏安装计划 项目内容:总工程量约100MW,主体采用轻钢支架结构,基础采用混凝土灌注桩,光伏组件尺寸为2382X1134X30mm;支架主材采用C型钢,详情可参考施工图纸,施工方带随手工具现场安装光伏板,支架,接线等。 近期可随时进场,包住保险,先吃后扣,固定单价,按进度结款,做多少结多少,详情面议,请新疆昌吉附近有意向专业的施工方联系我。 |
| 询价区域 | 甘肃、青海、宁夏、新疆 |
| 项目图纸及资料 |
新疆昌吉地区100MW平..._资料1.pdf |
| 项目图片 |
|




