| 联系方式 | 该项目来源于钢构宝APP,联系业主电话请下载钢构宝APP,或咨询钢构宝客服4001392998/四零零--一三九--二九九八 https://www.zwggb.com |
| 订单编号 | 1376264038459 |
| 订单类型 | 钢构工程 |
| 项目地址 | 山东东营市东营区曹州路 |
| 总面积 | 5760.00㎡ |
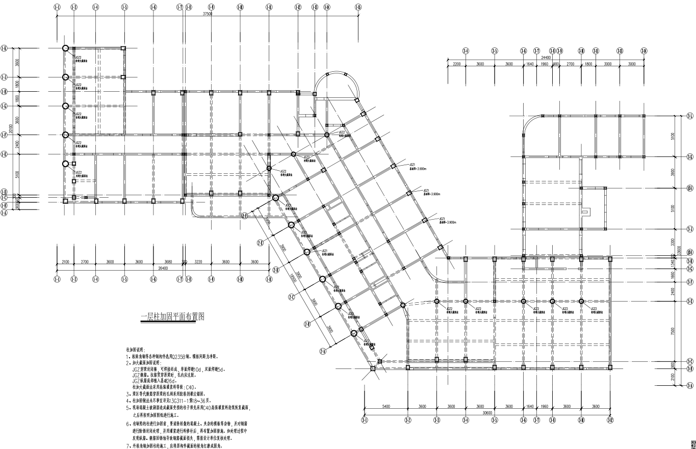
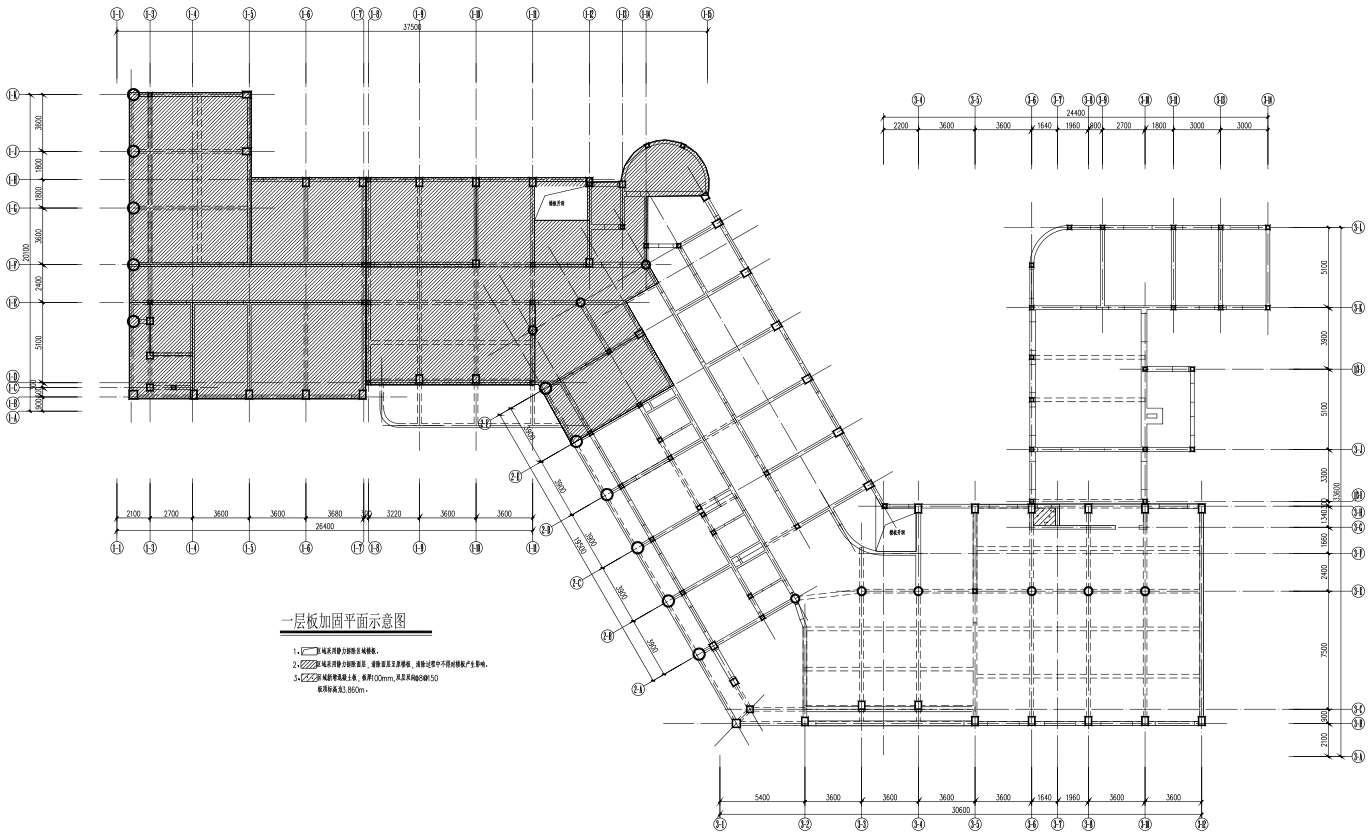
| 项目描述 | 1、山东东营旧楼钢结构加固,是一个残疾人康复中心,建筑总面积为5760平方,地上五层,施工方出人工和随手工具,需要对墙体,柱子和钢梁等部分进行加固,具体做法详见图纸,包住不包吃 2、现在还在拆除原有的,随时可以来看现场,款项按进度结算,完活全部结清,请东营就近的专业施工单位尽快联系我做预算报价 |
| 询价区域 | 山东 |
| 项目图片 |
|




