| 联系方式 | 该项目来源于钢构宝APP,联系业主电话请下载钢构宝APP,或咨询钢构宝客服4001392998/四零零--一三九--二九九八 https://www.zwggb.com |
| 订单编号 | 1376050753987 |
| 订单类型 | 工程总包 |
| 项目地址 | 山东淄博市淄川区工业园区 |
| 总面积 | 1000.00㎡ |
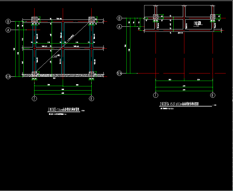
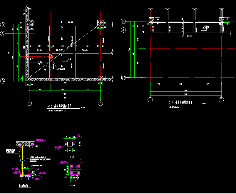
| 项目描述 | 1、山东淄博商铺外挂电梯安装工程,拟在楼梯间对应位置外侧增设一部电梯及装修龙骨,该造整体结构形式为钢框架结构体系。层高为4.2m+3.5m+1.5m,详细可见图纸, 2、目前需要淄博就近专业施工方做预算报价,人工包含器械辅材和材料分开报价,合适后续也可合作,请就近专业施工方联系我 |
| 询价区域 | 山东 |
| 项目图片 |
|




