| 联系方式 | 该项目来源于钢构宝APP,联系业主电话请下载钢构宝APP,或咨询钢构宝客服4001392998/四零零--一三九--二九九八 https://www.zwggb.com |
| 订单编号 | 1375606355996 |
| 订单类型 | 工程总包 |
| 项目地址 | 陕西榆林市榆阳区孟家湾乡 |
| 总面积 | 800.00㎡ |
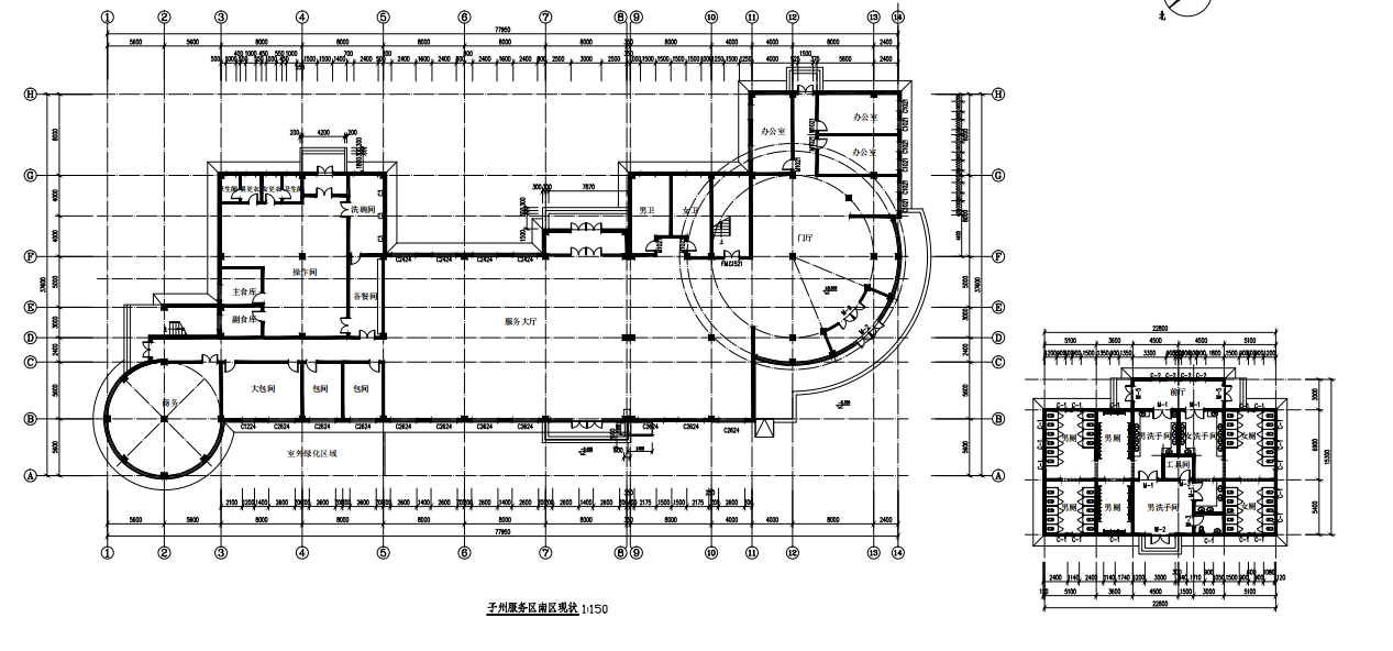
| 项目描述 | 陕西榆林服务区钢结构改造工程 1、钢结构部分工程量约三十四吨,地上一层,建筑高度4.2米,钢结构部分可包工包料,有图纸可参考,计划三天内开工,付款方式面谈,请榆林本地施工方加微信沟通报价,负责人:王总。 |
| 询价区域 | 陕西 |
| 项目图纸及资料 |
陕西榆林服务区钢结构改造..._资料1.xlsx |
| 项目图片 |
|




